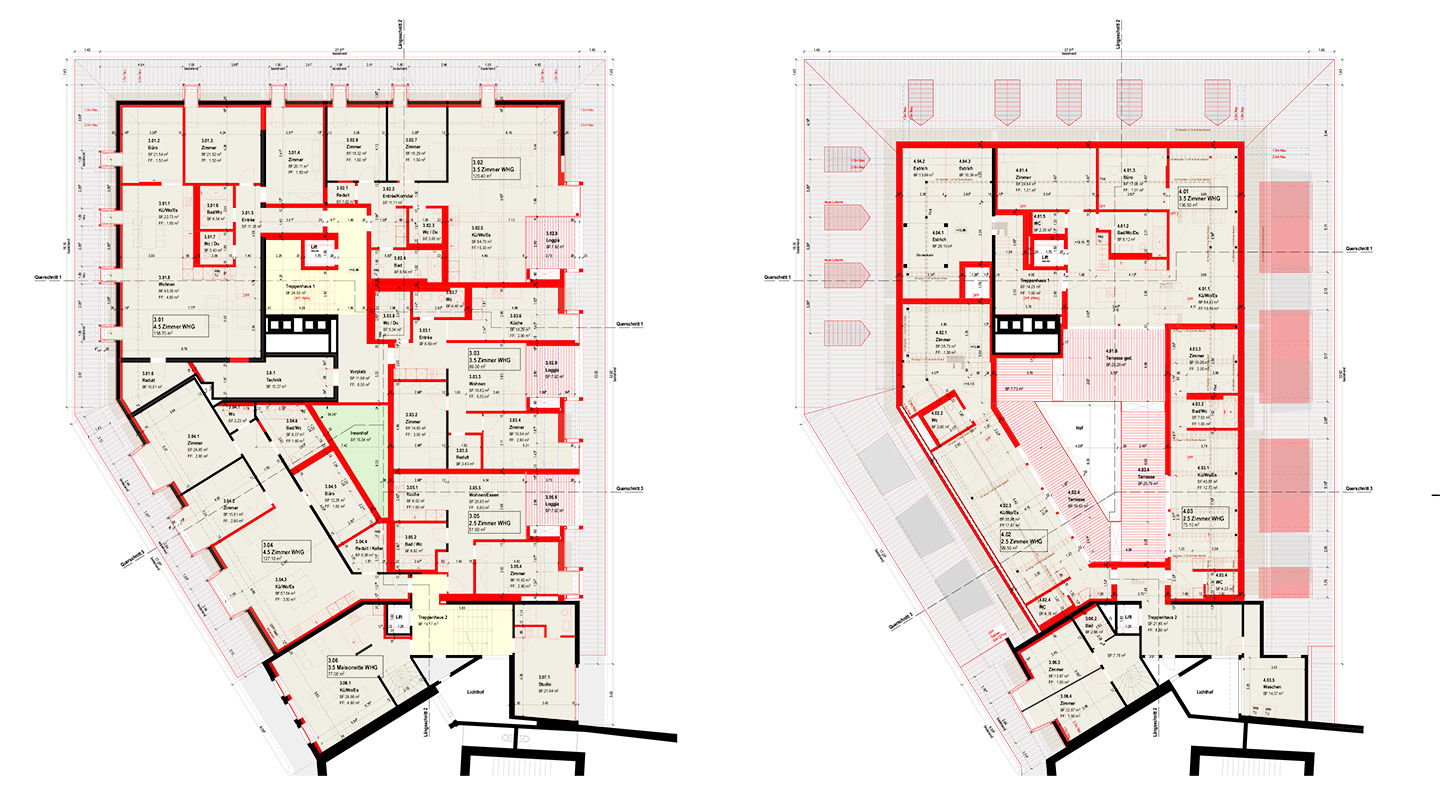
Auftrag
Für brügger architekten AG, durften wir Ende 2015, die Projektpläne und die Detailstudien für des Umbaus Freienhof in Thun zeichnen.
Phase
Bauprojekt, Ausschreibungspläne, Baueingabe, Detailstudien
Kunde
brügger Architekten ag - Thun
b-architekten.ch
Location
Thun
