c402_01.jpg

Grundrisse DG und OG 1:100

c402_02.jpg

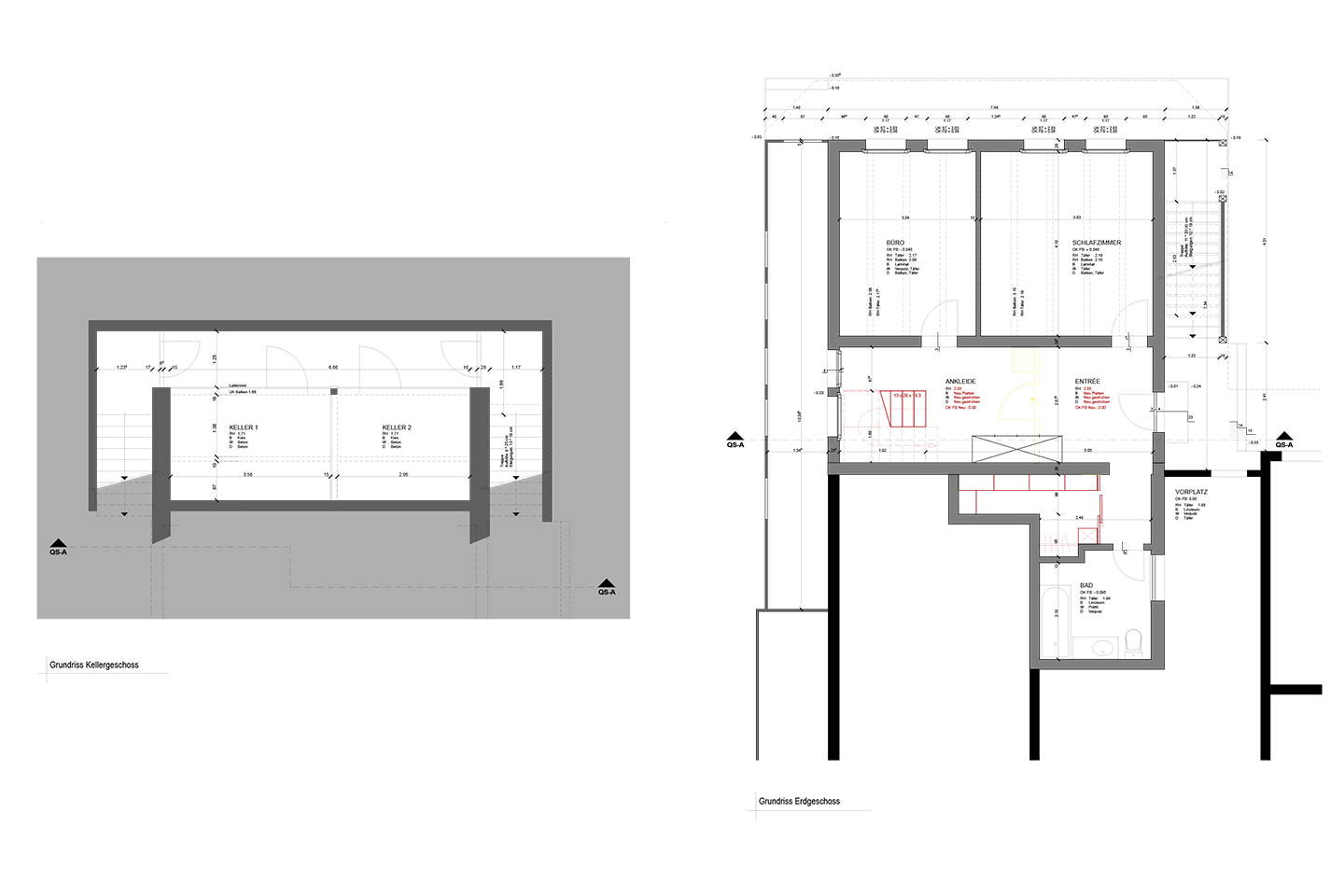
Grundrisse UG und EG 1:100

c402_03.jpg

Fassaden & Schnitt 1:100

c402_04.jpg

Autounterstand 1:100


Auftrag

Nach den Massaufnahmen des Bestandes durften wir für Dällenbach Ewald Architekten die Grundlagen und Baueingabepläne zeichnen.


Phase

Massaufnahmen, Baueingabepläne


PDF

Planbeispiele auf Anfrage


Kunde

Dällenbach Ewald Architekten AG
daellenbachewald.ch


Location

Unterlangenegg

c402_02.jpg