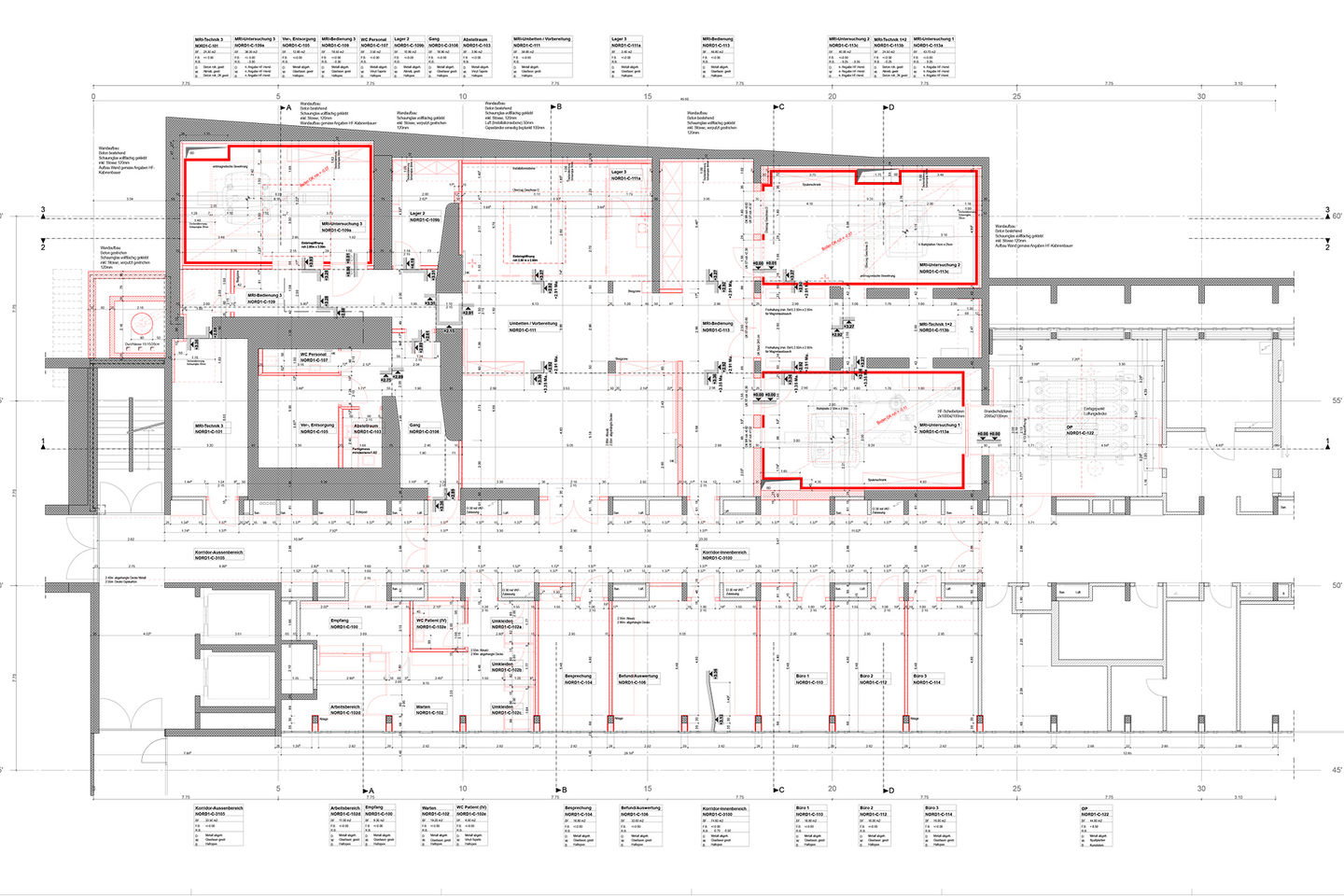
c347_usz_mri_01.jpg

Grundriss MRI - Ausführung 1:50

c347_usz_mri_011.jpg

Grundriss MRI - Beleuchtung & Deckenspiegel 1:50

c347_usz_mri_02.jpg

Schnitt MRI - Ausführung 1:50

c347_usz_fluchtweg.jpg

Grundriss & Schnitt MRI Fluchtweg . Ausführung 1:50

c347_usz_neo_01.jpg

Grundriss NEO - Ausführung 1:50

c347_usz_neo_03.jpg

Grundriss MRI - Beleuchtung & Deckenspiegel 1:50


Auftrag

Umbau Universitätsspital, Zürich
Erstellen von Ausführungsplänen, Raumstudien & Schemaplänen. Gebäudeteile MRI, NEO & Notstrom





Kunde

Meili Bauconsulting GmbH


Location

Rämistrasse 100, Zürich

C347_USZ_MRI_01

c347_usz_mri_01.jpg